お探しのエリアを選択して下さい。
国分ハウジング グループ
鹿児島・宮崎・大分・熊本の建売情報サイト
Property Detail物件詳細情報
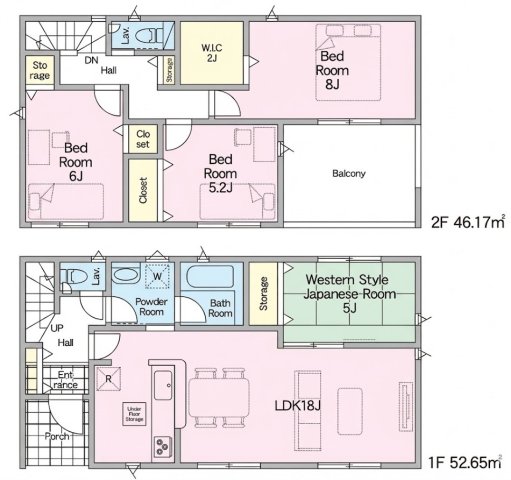
6月完成予定♪■LDKはゆったり18帖と家族団らんにぴったり■宮内小・隼人中エリア■ゆとりある5帖の落ち着く空間の和室☆宮内小まで450mと通学に安心!
物件価格2,380万円
月々支払い例58,500円
頭金0円/ボーナス払い0円
※40年返済 ※3年固定金利0.85%
※地図上の「ピンマーク」の位置は「町名」もしくは「丁目」がある場合は「丁目」にマッピングされています。実際の場所ではございません。
※学校区は住所から自動判定したものであり、保証できる情報ではございません。正確な学校区はお問い合わせ下さい。
区画図
前面道路含む現地写真
鍋底全体に熱がいきわたるので熱効率が良いのが特徴です。掃除もしやすいので清潔な環境を維持できます。
キッチンの蛇口は先端に浄水器を内蔵しているためスペースを取らず、見た目もスッキリしています。
鍵はカードやシールをハンドルに近づけるだけで開け閉め出来きます。
映像と音声で玄関先の様子をチェックできるTVモニタ付インターホン。
年中便座が温かいので、冬の寒い日など温かい便座に座れます。
冬は浴室内を暖める事ができ夏は涼しくする事ができるため入浴時を快適に過ごせます。
【小学校】霧島市立宮内小学校まで450m
【中学校】霧島市立隼人中学校まで2700m
【幼稚園】宮内認定こども園まで470m
【郵便局】見次簡易郵便局まで480m
【寺院・神社】鹿児島神宮まで860m
ご入力いただいた内容に不備があるようです。
※当フォームのご利用にあたっては、「個人情報保護方針」にご同意いただく必要があります。ご同意いただける場合は、上記の「同意する」にチェックをつけたうえでご利用ください。
※複数店舗・ブランドへご来場いただいた場合でも、ご来場プレゼントは1回限りの進呈とさせていただきます。 ※弊社主催の他イベントおよびキャンペーンの来場特典との併用は不可となります。
この物件をご覧いただくには会員登録が必要です。
ログインはこちら